Skip to main content

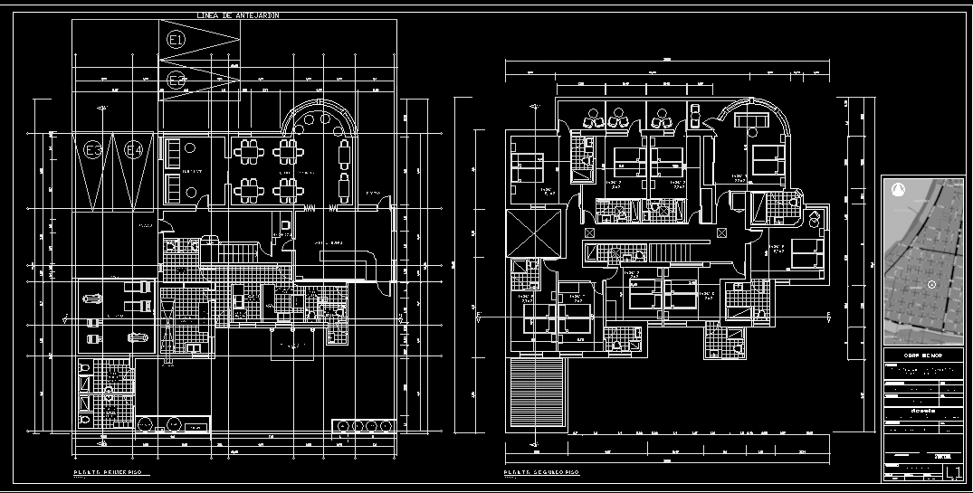
Hotel 5 Norte

Remodelación edificio dos pisos, emplazada en la cumbre del terreno siendo su objetivo la vista panorámica del balcón principal, se considera colocar grande ventanales termopanelaction-blue reflectivo, para conectar con la tonalidad del cielo. Programa: 9 habitaciones, 10 baños, cocina, sala de estar, comedores, bar, sala de juego y terrazas